Noida Luxury Real Estate Logo Noida Luxury Animated Logo
Enquire Now

Ready To Move Office — 514 Sq.ft (Sale)

Price: ₹64 Lac (Bare Shell) 514 Sq.ft Onwards*
+21

Pricing Details

Sale₹ 11,500
Stamp Paper (5%)₹ 2,95,550
Reg. Fee (1%)₹ 59,110
Transfer Charge₹ 3,59,800
Total Cost₹ 66,25,460
Sale₹ 17,500
Stamp Paper (5%)₹ 4,49,750
Reg. Fee (1%)₹ 89,950
Total Cost₹ 95,34,700

Brokerage, Any other Govt. & Society charges are not included

Posted by
Chandradeep Sharma


Highlights

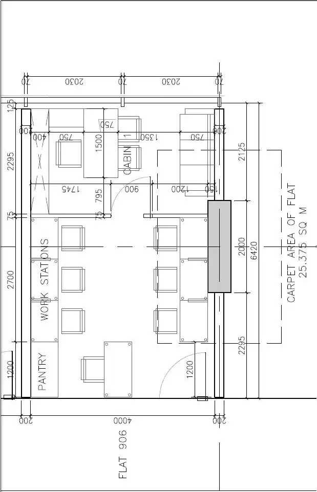
Carpet Area
310 Sq.ft
Saleable Area
514 Sq.ft
Ceiling Height
10.5 ft
Cabin
1 Cabin
Workstation
6 Workstations

Property Details

Office Layout1 Cabin, 5 Workstation, 1 Reception
Property AgeLess than a year old
Furnished Type Furnished
FacingNorth-East Facing
Flooring Typevitrified Tile Flooring
Built-up Area514 Sq. ft.
Covered Parking1
Floors11 of 28
Preferred TenantsCorporate

Furnished With

1 Excutive Table
5 Workstation
Overhead Storage
Centralized AC Unit
7 Executive Chairs
1 Reception Sofa
6 Lights

Amenities

8+ High-Speed Lifts Service Lifts Podium Retail Reserved Parking Mahamaya Flyover – 2 mins DLF Mall of India – 7 mins 24x7 Security CCTV Surveillance Metro Station – Okhla Bird Sanctuary

Description

Looking to invest in a premium commercial property in Noida? This 514 sq.ft office space for sale in Supertech Supernova Astralis, Sector 94, offers an exceptional opportunity for professionals and investors seeking a prime corporate address right on the Noida Expressway.

Strategically located in front of Okhla Bird Sanctuary Metro Station and just a few minutes from South Delhi. This office promises high visibility, easy accessibility, and future-ready infrastructure.


Location Details

Address

Branch Office: Unit No. 1146, Supernova Astralis, Sector-94, Noida, Uttar Pradesh-201301

Phone

+91 9717288533

Email

noidaluxury@gmail.com

Working Hours

Monday – Sunday
10:00 AM - 7:00 PM

Leave Your Details Here